listing_gallery

VERKOCHT
Vraagprijs: € 475.000

Huzenblek 50

2381 - Weelde
  • 431 m2
  • 1489 m2
  • 3 slaapkamers
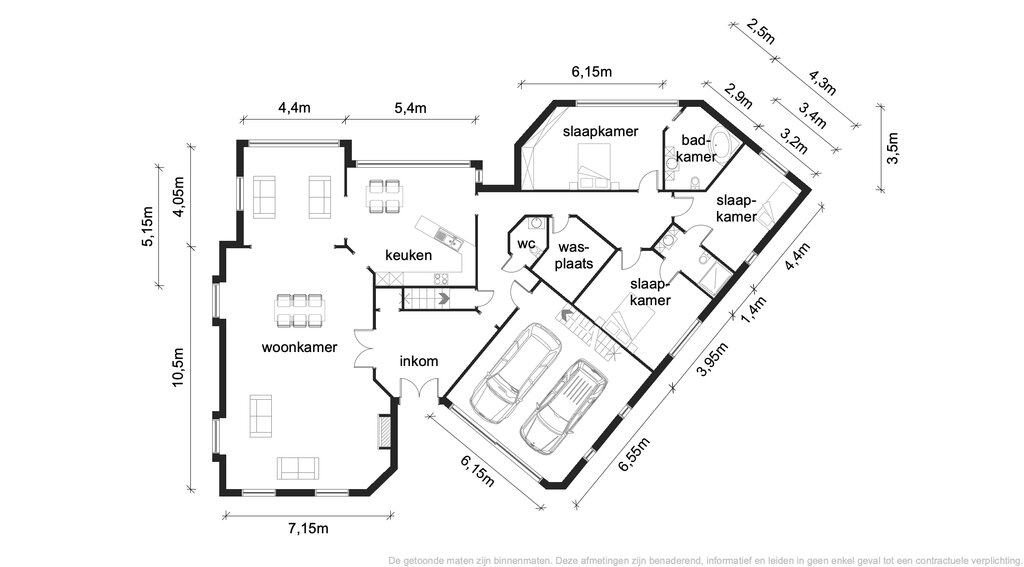
Zeer mooi gelegen laagbouw villa (architect Frans de Bont) op een rustige locatie met o.a. 3 slaapkamers, 2 badkamers, mooie ruime leefruimte met veranda, keuken, inpandige garage met toegang tot vide(zolder), waskamer, kelder en aangename tuin met bijgebouw. Gelegen in een rustige wijk op een perceel van ca. 1489m² te Weelde.

Begane grond:
U betreedt de woning via de entree met travertinvloer, vestiaire en gastentoilet met urinoir. Links van de entree bevindt zich de ruime woonkamer (ca.67,2m²) met witte marmeren vloer en gezellige houtkachel waarvan de schoorsteen extra ventilatoren heeft om warmte af te geven. Aan de woonkamer bevindt zich een gezellige zitruimte (veranda van ca. 18,04m²) met mooi zicht in eigen tuin. Vanuit de woonkamer heeft u toegang tot de ruime keuken met granieten vloer. Deze geniet veel natuurlijk daglicht door de grote raampartijen. De keuken is voorzien van de nodige inbouwapparatuur en handige inbouwkasten. De slaapkamers zijn eveneens ruim en voorzien van ensuite badkamers. De masterbedroom (ca. 20m²) is voorzien van inbouwkasten en elektrische rolluiken. Er zijn 2 badkamers: ensuite badkamer masterbedroom is voorzien van een hoekbad, wastafel en toilet -ensuite badkamer van de 2 andere slaapkamers (ca.17m² en 14,11m²) is voorzien van douche, wastafel en toilet. Verder is er op de begane grond nog een waskamer voorzien en toegang naar de kelder (ca.27,54m²). De ruime inpandige garage (ca.40,34m²) heeft een elektrische deur. Vanuit de garage heeft u toegang tot de zolder(vide) die nog zeer veel opbergruimte biedt.

Buiten:
Zeer mooi aangelegd plantsoen in de voortuin alsook een aangename achtertuin waar u volledige privacy heeft. Achter de woning is een gezellig terras voorzien van een elektrisch luifel. Verder is de tuin in zijn geheel onderhoudsvriendelijk aangelegd met fraaie planten en bomen. Eveneens bevindt zich hier nog een handig bijgebouw dewelke opbergmogelijkheden biedt.

Bijzonderheden:
- Zeer mooie rustige ligging
- Gehele woning voorzien van vloerverwarming
- Vaillant ketel vernieuwd ca. 2015
- Aluminium kozijnen met dubbele beglazing
- Centraal stofzuigsysteem
- Alarm
- Woonkamer en master bedroom voorzien van elektrische rolluiken
- Grondwaterput met sproei-installatie door de hele tuin
- Tuinverlichting
- Goedgekeurde elektrische installatie
- Afzelia hardhouten dakgoten behandeld met Jotul Noorse speciale coating verf
- Oprit is extra verstevigd aangelegd om verzakkingen te voorkomen

Informatieplicht: EPC 177 kWh/m²
Vg - Gmo - Gvkr - Gvv - WgLk
Objectcode:
GE13640
Type woning:
Woonhuis
Soort woning
Villa
Type woning
Vrijstaande woning
Beschikbaarheid:
Verkocht
Vraagprijs
€ 475.000
Koopconditie:
Kosten koper
Aanvaarding:
In overleg
Inhoud:
1375
Aantal kamers:
6
Aantal slaapkamers:
3
Bouwjaar:
1992
Energielabel:
C

Wilt u graag een volledige brochure bekijken? Klik dan op de onderstaande link om een PDF bestand te downloaden.

Download brochure
Meer informatie over deze woning of een bezichtiging plannen?

Neem dan contact op met één van onze makelaars via 013 - 534 91 15 of stuur een mail naar makelaardij@appels.nl.