Appels Makelaardij plaatst cookies om deze website naar behoren te laten functioneren en Analytische cookies waarmee wij het gebruik van de website kunnen meten. Deze cookies gebruiken geen persoonsgegevens. Geef hier uw toestemming voor cookies die wel persoonsgegevens verwerken. Meer informatie vindt u op de Privacy pagina.
Geef hier toestemming voor cookies die uw persoonsgegevens verwerken. Meer informatie
Aan de charmante Venneweg in Goirle treft u een ruime en goed onderhouden vrijstaande woning met een karakteristieke uitstraling. Met een woonoppervlakte van maar liefst ca. 180 m², zes slaapkamers, twee badkamers, een lichte woonkamer, ruime keuken, garage, multifunctioneel bijgebouw en een zonnige tuin biedt deze woning alles wat u zich kunt wensen. De woning ademt sfeer en authenticiteit, en biedt tegelijkertijd volop mogelijkheden om naar eigen smaak te updaten. Dankzij de oprit aan de achterzijde en de praktische indeling is dit een woning die comfort en karakter perfect weet te combineren. Een unieke kans voor wie royaal wil wonen in een fijne, groene omgeving.
Gelegen in een rustige en kindvriendelijke straat in Goirle, bevindt deze woning zich op een ideale locatie. Scholen, speelgelegenheden, sportverenigingen, culturele voorzieningen, wandel- en fietsroutes in de bosrijke buitengebieden bevinden zich op korte afstand, wat deze buurt uitermate geschikt maakt voor zowel gezinnen als mensen op zoek naar het creëren van levensloopbestendig wonen. Binnen enkele minuten bereikt u diverse supermarkten, winkels en horecagelegenheden in de sfeervolle dorpskern. De openbaarvervoervoorzieningen zijn uitstekend: bushaltes bevinden zich op loopafstand en zorgen voor een directe verbinding met Tilburg en omliggende plaatsen. Dankzij de nabijgelegen uitvalswegen zoals de A58 en N630 bent u bovendien binnen korte tijd in steden als Eindhoven, Breda en Tilburg. De buurt kenmerkt zich door rust, groen en een hechte gemeenschap. Een heerlijke plek om thuis te komen.
Entree: Via de verzorgde voortuin betreedt u de woning. De voortuin zorgt voor een charmante eerste indruk, terwijl er in de straat volop parkeergelegenheid aanwezig is. Eenmaal binnen, komt u in de ruime hal waar u direct de warme sfeer van het huis ervaart. De hal biedt toegang tot de lichte woonkamer, de keuken en de trapopgang naar de eerste verdieping, en vormt zo het hart van de woning.
Woonkamer: De woonkamer is licht, ruim en uitnodigend. Grote ramen zorgen voor een aangename lichtinval gedurende de dag en geven uitzicht op zowel de voor- als achtertuin. Dankzij de open indeling is er ruimte genoeg om zowel een comfortabele zithoek als een gezellige eethoek te creëren. Hier geniet u van ontspannen avonden met familie of vrienden in een prettige, open sfeer.
Keuken en bijkeuken: Grenzend aan de woonkamer vindt u de ruime keuken, die is voorzien van een langwerpig aanrecht met gasfornuis, ingebouwde ovencombinatie, koelkast en vaatwasmachine, dubbele spoelbak en volop opbergruimte in lades en kasten. Verder is er een ruime vaste keukenkast en een bescheiden doch functionele kelder. De keuken biedt daarnaast ruimte voor een eettafel, ideaal voor ontbijt, een snelle lunch of een kop koffie. Aangrenzend bevindt zich de praktisch en functioneel ingerichte bijkeuken met een ruime bergkast en de aansluitingen voor witgoed en een koelkast. Vanuit de bijkeuken heeft u toegang tot het toilet, de achtertuin en een extra kamer met badkamer.
Slaapkamer en sanitair: Verder vindt u op de begane grond een extra slaapkamer met badkamer, volledig betegeld en voorzien van wastafel, toilet en douchecabine met schuifdeur. Dankzij de royale afmetingen zijn de mogelijkheden hier eindeloos en kan deze keurig onderhouden ruimte naar eigen smaak eenvoudig worden ge-update naar hobbykamer, yogastudio of speelkamer.
Eerste verdieping: De trap in de hal leidt u naar de eerste verdieping waar u vier goed bemeten, lichte en comfortabele slaapkamers en de tweede badkamer aantreft. De ruime, lange overloop zorgt zo voor een prettige verbinding tussen de kamers en de badkamer wat bijdraagt aan het comfort op deze verdieping.
Slaapkamers: Alle vier de slaapkamers beschikken over ruime ramen en profiteren zo van veel natuurlijk licht. Drie van de slaapkamers hebben ingebouwde kastruimte en door de open indeling is er voldoende ruimte over voor een bureau of makkelijke stoel om te lezen of relaxen. Eén van de slaapkamers beschikt bovendien over een deur naar het aangrenzende dakterras, waar u kunt genieten van een fraai uitzicht op de tuin. De kamers zijn veelzijdig in te delen, zodat u ze ook kunt gebruiken als kinderkamer, logeerkamer of werkkamer.
Sanitair: De tweede badkamer is keurig afgewerkt en volledig betegeld. Deze ruimte beschikt over een ligbad met douchekop, een wastafel met spiegel, een staand toilet en een bidet. Dankzij de praktische indeling is dit een fijne plek voor het hele gezin.
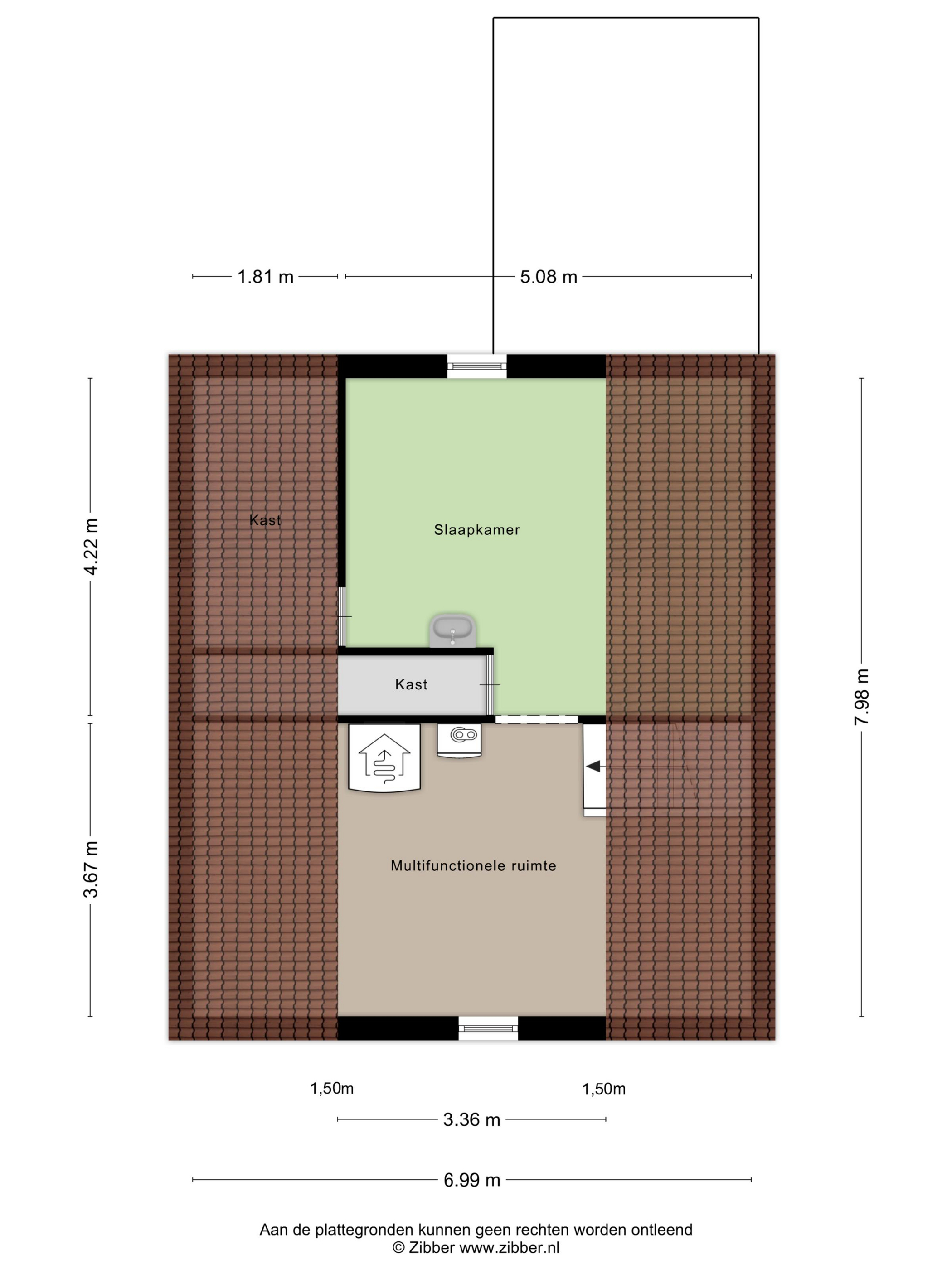
Tweede verdieping: Via een vaste trap bereikt u de zolderverdieping, die is verdeeld in een open multifunctionele ruimte met CV-installatie en een extra slaapkamer. De slaapkamer heeft een vaste wastafel en biedt voldoende ruimte voor een tweepersoonsbed, bureau en kasten. De open multifunctionele ruimte is volledig in te richten naar eigen wensen en behoeften, bijvoorbeeld als werkplek of extra leefruimte, waardoor de zolder de mogelijkheid biedt voor (tijdelijke) huisvesting voor een volwassen kind, bezoekende vrienden of familieleden.
Buitenruimte: Het huis wordt omringd door een met zorg onderhouden tuin. De zonnige achtertuin vormt een heerlijke plek om te genieten van het buiten zijn. De combinatie van bestrating en groen zorgt voor een prettige balans tussen comfort en natuur. Er is volop ruimte voor een buitenkeuken met eettafel of een royale loungeset zodat u optimaal kunt genieten van het buitenleven in uw eigen achtertuin. De tuin is ook te bereiken via de poort naast de oprit aan de achterzijde, ideaal voor het parkeren van uw auto.
Garage en multifunctioneel bijgebouw Aangrenzend aan de woning bevinden zich de garage en een multifunctioneel bijgebouw. Beiden zijn voorzien van elektriciteit, verwarming en stromend water. De garage biedt niet alleen ruimte voor het parkeren van een auto, maar ook voor fietsen, tuingereedschap of extra opslag. Het bijgebouw doet dienst als kantoor, maar kan ook gebruikt worden als praktijkruimte, sport- of yogaruimte, als bibliotheek of studieruimte. Praktische toevoegingen die uitstekend passen bij het royale karakter van deze woning.
Wonen in Goirle Goirle biedt alle voordelen van het wonen in een rustig, vriendelijk en levendig dorp met alle voorzieningen van Tilburg binnen handbereik. Het is gelegen op korte afstand van bossen en natuurgebieden zoals de Regte Heide en Gorp & Roovert. Goirle heeft goede verbindingen met de omringende dorpen en steden en makkelijk bereikbare uitvalswegen naar de snelwegen richting Breda, Eindhoven en ’s-Hertogenbosch.
Bijzonderheden • Vrijstaande ruime woning met karakter en veel potentie • Gelegen aan de geliefde Venneweg in Goirle • In nabijheid van de gezellige dorpskern • Totale woonoppervlakte ca. 180 m² • Zes slaapkamers, twee badkamers • Lichte woonkamer met open indeling • Ruime keuken met bijkeuken • Slaapkamer en badkamer op de begane grond • Omringd door goed onderhouden tuin met zonnige achtertuin • Garage met oprit en kantoor aan de achterzijde • Goed onderhouden en met mogelijkheden voor updaten naar eigen wensen • Gelegen nabij scholen, winkels, sportclubs en openbaar vervoer • Op korte afstand van natuurgebieden, waaronder de Regte Heide en Gorp & Roovert • Centrale ligging met goede bereikbaarheid van Tilburg, Eindhoven en Breda
Objectcode:
GE14377
Type woning:
Woonhuis
Soort woning
Eengezinswoning
Type woning
Vrijstaande woning
Beschikbaarheid:
Verkocht onder voorbehoud
Vraagprijs
€ 650.000
Koopconditie:
Kosten koper
Aanvaarding:
In overleg
Inhoud:
716
Aantal kamers:
7
Aantal slaapkamers:
6
Bouwjaar:
1971
Energielabel:
F
Wilt u graag een volledige brochure bekijken? Klik dan op de onderstaande link om een PDF bestand te downloaden.