Appels Makelaardij plaatst cookies om deze website naar behoren te laten functioneren en Analytische cookies waarmee wij het gebruik van de website kunnen meten. Deze cookies gebruiken geen persoonsgegevens. Geef hier uw toestemming voor cookies die wel persoonsgegevens verwerken. Meer informatie vindt u op de Privacy pagina.
Geef hier toestemming voor cookies die uw persoonsgegevens verwerken. Meer informatie
Aan de Nassaulaan 16 in Baarle-Nassau staat een unieke, vrijstaande woning met een royale woonoppervlakte van maar liefst 230m². Deze in 1972 gebouwde woning combineert ruimte en functionaliteit met een uitstekende ligging. U beschikt over drie slaapkamers, twee badkamers, een sfeervolle open woon- en eetkamer, een multi-inzetbaar souterrain, een zonnige achtertuin én een garage. Dit is een huis vol mogelijkheden dat u geheel naar eigen wens kunt moderniseren en inrichten. Een woning die uitnodigt tot comfortabel wonen én tot het realiseren van uw persoonlijke woonideeën.
De woning is gelegen in een rustige, groene straat aan de rand van het dorp Baarle-Nassau. U woont hier op loopafstand van het gezellige centrum met winkels, supermarkten en horecagelegenheden. Voorzieningen zoals basisscholen, middelbare scholen en diverse sportclubs zijn goed bereikbaar. Ook openbaar vervoer vindt u in de nabije omgeving, met aansluitingen richting omliggende dorpen en steden. Via de uitvalswegen bent u bovendien vlot onderweg richting Tilburg, Breda en Antwerpen. Dit maakt de locatie ideaal voor wie houdt van rustig wonen, maar met alle gemakken binnen handbereik.
Entree: Via de voortuin en de oprit bereikt u de entree van de woning, waar u tevens toegang heeft tot de ondergelegen garage. Eenmaal binnen, komt u in de royale hal, die fungeert als centrale verbinding naar alle ruimtes. Hier vindt u voldoende plek voor een garderobe of een opbergmeubel en daarnaast grenst de hal aan de toiletruimte.
Woonkamer: De woonkamer vormt het kloppend hart van de woning. Dankzij de grote ramen rondom geniet u van een overvloed aan natuurlijk licht, waardoor de ruimte een open en ruimtelijk gevoel geeft. De sfeervolle haard en de marmeren vloer dragen bij aan de karakteristieke uitstraling. Via de schuifpui heeft u direct toegang tot de tuin, wat binnen en buiten moeiteloos met elkaar verbindt.
Keuken: Naast de woonkamer bevindt zich de halfopen keuken. Deze is ingericht met een praktisch U-vormig aanrechtblad, voorzien van een inductiekookplaat, afzuigkap, spoelbak, vaatwasmachine, oven, combi-oven/magnetron en koel-/vries-combinatie. Er is bovendien ruimte voor een knus ontbijthoekje. Hoewel de keuken functioneel is, biedt deze volop mogelijkheden om te moderniseren en helemaal naar uw eigen smaak in te richten.
Slaapkamers: Grenzend aan de hal liggen twee ruime slaapkamers. Beide kamers zijn licht en veelzijdig in gebruik. Of u ze inricht als comfortabele slaapkamers, thuiswerkplekken of hobbyruimtes: de mogelijkheden zijn er. Eén van de kamers beschikt bovendien over een handige ingebouwde kast. Verder vindt u op de begane grond nog twee extra kamers, die naar eigen wens zijn te gebruiken. Of u nu behoefte heeft aan een kantoor, een logeerkamer of een atelier, hier kunt u uw ideeën tot leven brengen.
Sanitair: De badkamer op deze verdieping is geheel betegeld en voorzien van een ligbad, een douchecabine, wastafel en spiegel. Alles verkeert in nette staat en kan, indien gewenst, gemoderniseerd worden. Dankzij de ligging direct naast één van de slaapkamers is deze badkamer extra praktisch in gebruik.
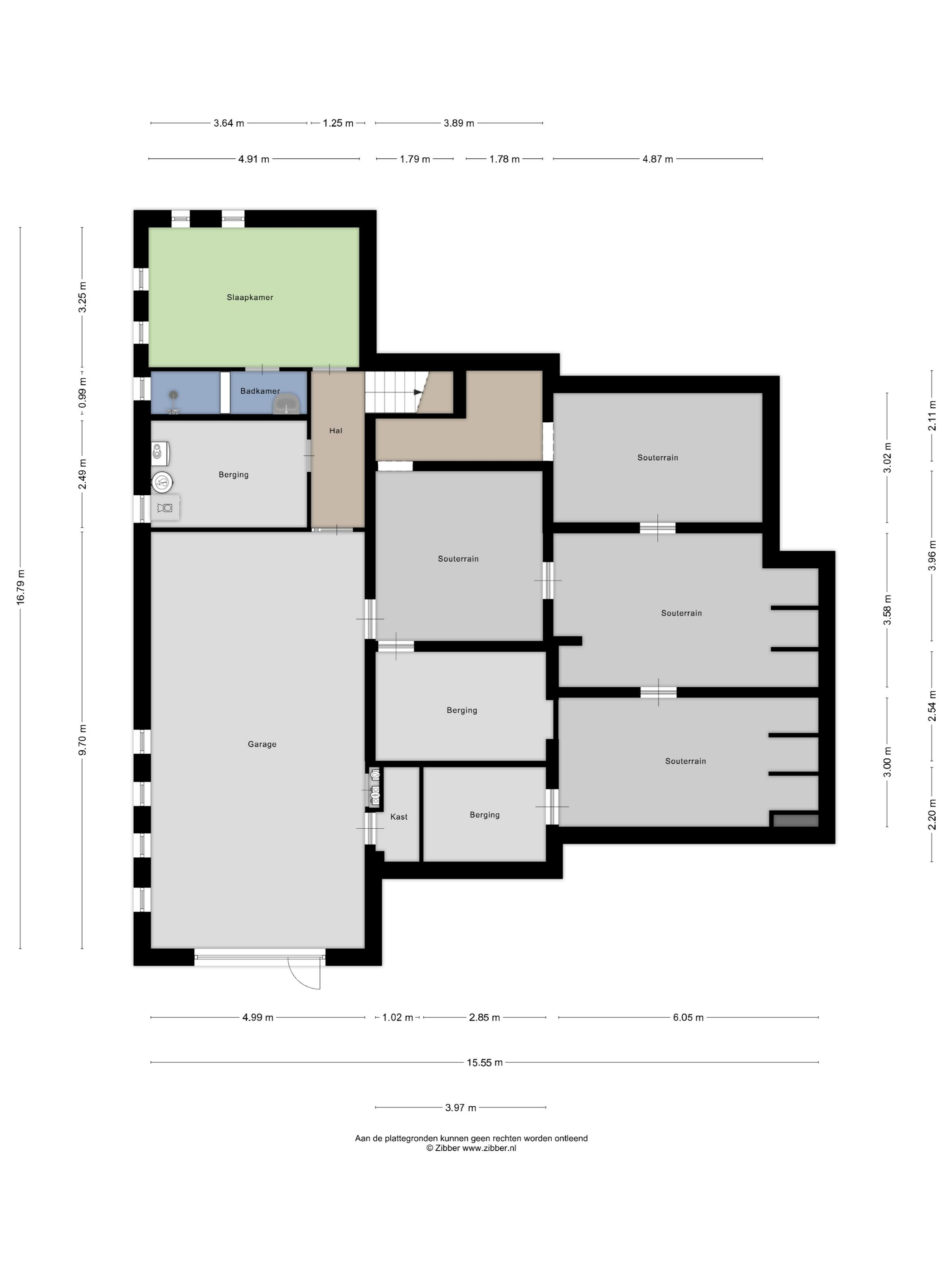
Souterrain: Vanuit de hal bereikt u via een trap het ruime souterrain. Deze verdieping biedt volop mogelijkheden en is daarmee een waardevolle toevoeging aan de woning. U vindt hier een extra slaapkamer, een badkamer, een berging met aansluiting voor witgoed en meerdere multifunctionele ruimtes die ideaal zijn voor opslag of als werkplaats.
Slaapkamer: De slaapkamer in het souterrain is bijzonder geschikt als logeer- of gastenverblijf. Dankzij de rustige ligging en het comfort is dit een fijne, aparte plek binnen het huis. Sanitair: Direct naast de slaapkamer bevindt zich de tweede badkamer, voorzien van een douche en een wastafel. Compact, maar praktisch ingericht.
Berging: Daarnaast is er een ruime berging aanwezig met aansluitingen voor wasmachine en droger. Hier kunt u gemakkelijk al uw huishoudelijke apparaten kwijt.
Multi-inzetbare ruimtes: Tot slot zijn er in het souterrain meerdere multi-inzetbare ruimtes die uitstekend geschikt zijn voor opslag van spullen of bijvoorbeeld als werkruimte. Na enige modernisering biedt deze verdieping bijzonder veel potentie.
Garage: De inpandige garage is eveneens via het souterrain bereikbaar. Deze lager gelegen ruimte biedt voldoende plek voor een auto, fietsen en extra opbergruimte.
Buitenruimte: Achter de woning bevindt zich de groene, royale tuin die uitnodigt tot buitenleven. Het overdekte terras vormt een fijne plek om te ontspannen, terwijl de vijver en het vele groen zorgen voor een sfeervol geheel. Er is volop ruimte voor een loungeset of een eettafel, zodat u in alle rust kunt genieten van zonnige dagen en gezellige avonden.
Bijzonderheden • Vrijstaande woning uit 1972 • Totale woonoppervlakte: 230 m² • Drie slaapkamers en twee badkamers • Sfeervolle open woon- en eetkamer met haard • Halfopen keuken met diverse inbouwapparatuur • Multi-inzetbaar souterrain met extra slaapkamer, badkamer en berging • Inpandige garage bereikbaar via oprit en souterrain • Ruime en zonnige achtertuin met vijver en overdekt terras • Gelegen in een rustige straat aan de rand van Baarle-Nassau • Centrum, scholen, sportclubs en supermarkten in de directe omgeving • Goede bereikbaarheid richting Tilburg, Breda en Antwerpen
Objectcode:
GE14625
Type woning:
Woonhuis
Soort woning
Villa
Type woning
Vrijstaande woning
Beschikbaarheid:
Verkocht
Vraagprijs
€ 695.000
Koopconditie:
Kosten koper
Aanvaarding:
In overleg
Inhoud:
1481
Aantal kamers:
11
Aantal slaapkamers:
3
Bouwjaar:
1972
Energielabel:
E
Wilt u graag een volledige brochure bekijken? Klik dan op de onderstaande link om een PDF bestand te downloaden.